
The Jeju Special Self-Governing Province Development Corporation was established in 1995 to lead the future of Jeju. The corporation's new building, scheduled for completion in 2025, aims to embody the corporation's core management philosophy by providing a flexible workspace to adapt to future organizational changes, arranging facilities to communicate and coexist with residents, and building an eco-friendly system as a key objective of its architectural plan.
The Jeju Special Self-Governing Province Development Corporation does not settle for the status quo and will grow into a public enterprise responsible for the future of Jeju as a pillar of innovation and efficiency in a new and dynamic workspace.






WORKSCAPE
Design Competition for New Offcie Building for Jeju Special Self-Governing Province Development Co.
Location | Jeju-si, South Korea
Program | OFFICE
Completion | 2022
In Collaboration with Doall Architects
Creating a Landscape of New Workspaces that Foster Local Community and Proactively Respond to Changing Future Work Environments
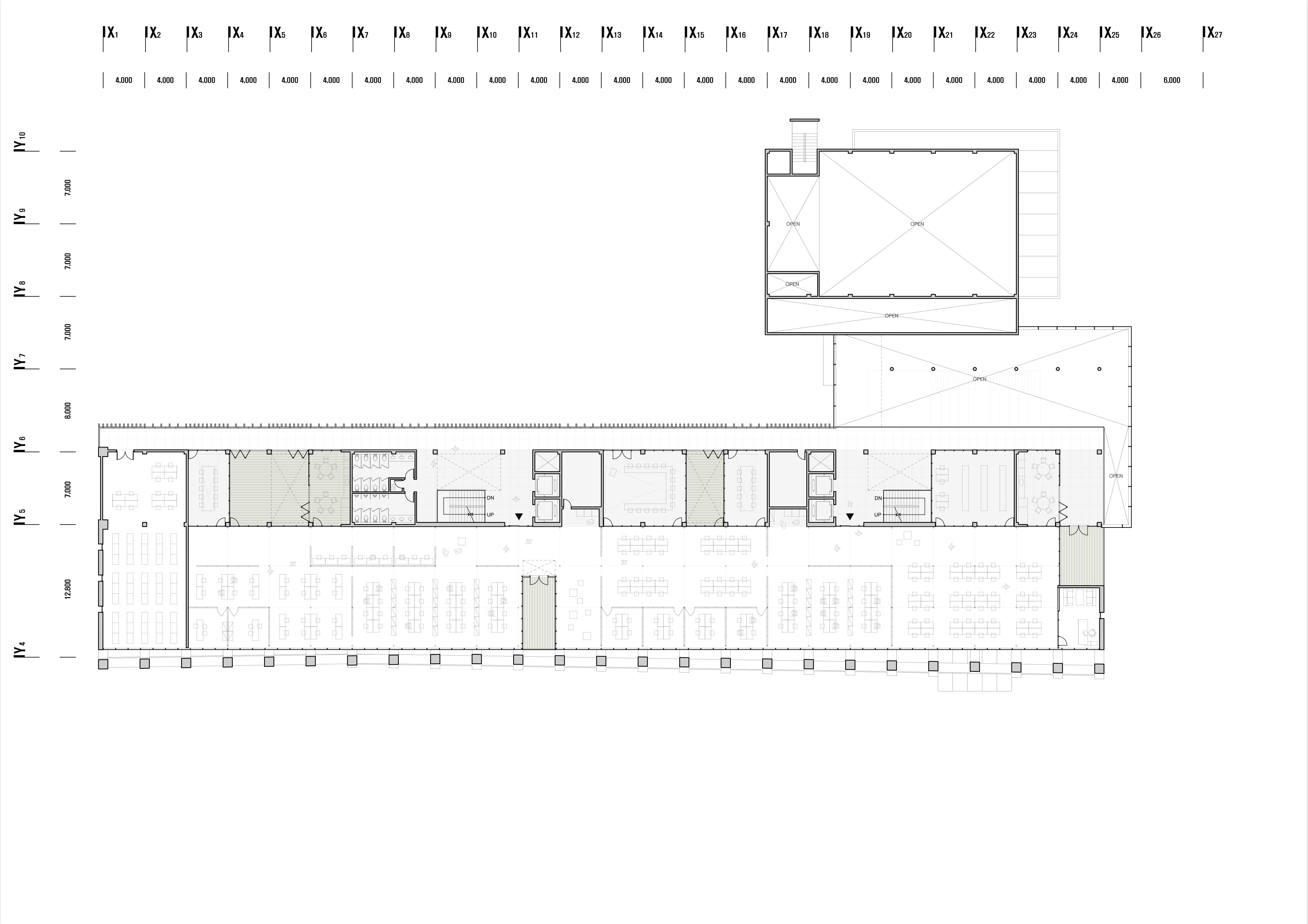
1. Efficient
Development Corporation Building We propose a Jeju Special Self-Governing Province Development Corporation building that has an efficient workspace to respond immediately and flexibly to rapidly changing work environments. To maximize workspace efficiency, the building exposes its columns to the exterior, consolidates support facilities, and clearly separates work areas from public areas, providing employees with a pleasant workspace conducive to concentration.
2. Eco-Friendly Development Corporation Building To minimize energy consumption, we propose a Jeju Special Self-Governing Province Development Corporation building that maximizes natural lighting and ventilation. The building minimizes cooling loads by placing the atrium facing north and actively utilizing voids and sunshades for ventilation and lighting. In addition, eco-friendly systems such as the use of vertical louvers, rooftop landscaping plans, and solar panel installation have been employed.
3. Symbolic
Corporation Building The exposed grid structure of the Jeju Special Self-Governing Province Development Corporation building creates a rational and robust image of the corporation. To reflect the transparent and clean image of Jeju's Samdasoo water, an ice-like transparent atrium floating on water has been planned. Furthermore, through the plan for external shared spaces, the building presents a vision of a public building that approaches and communicates with local residents.