About    News    People    Works    Research    Publication



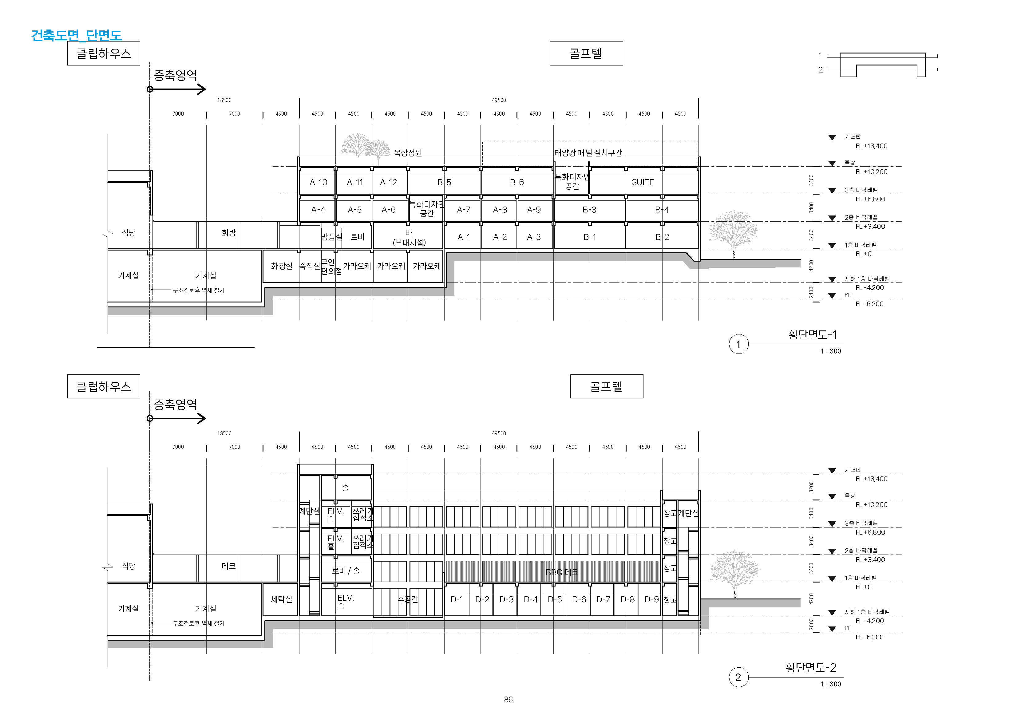
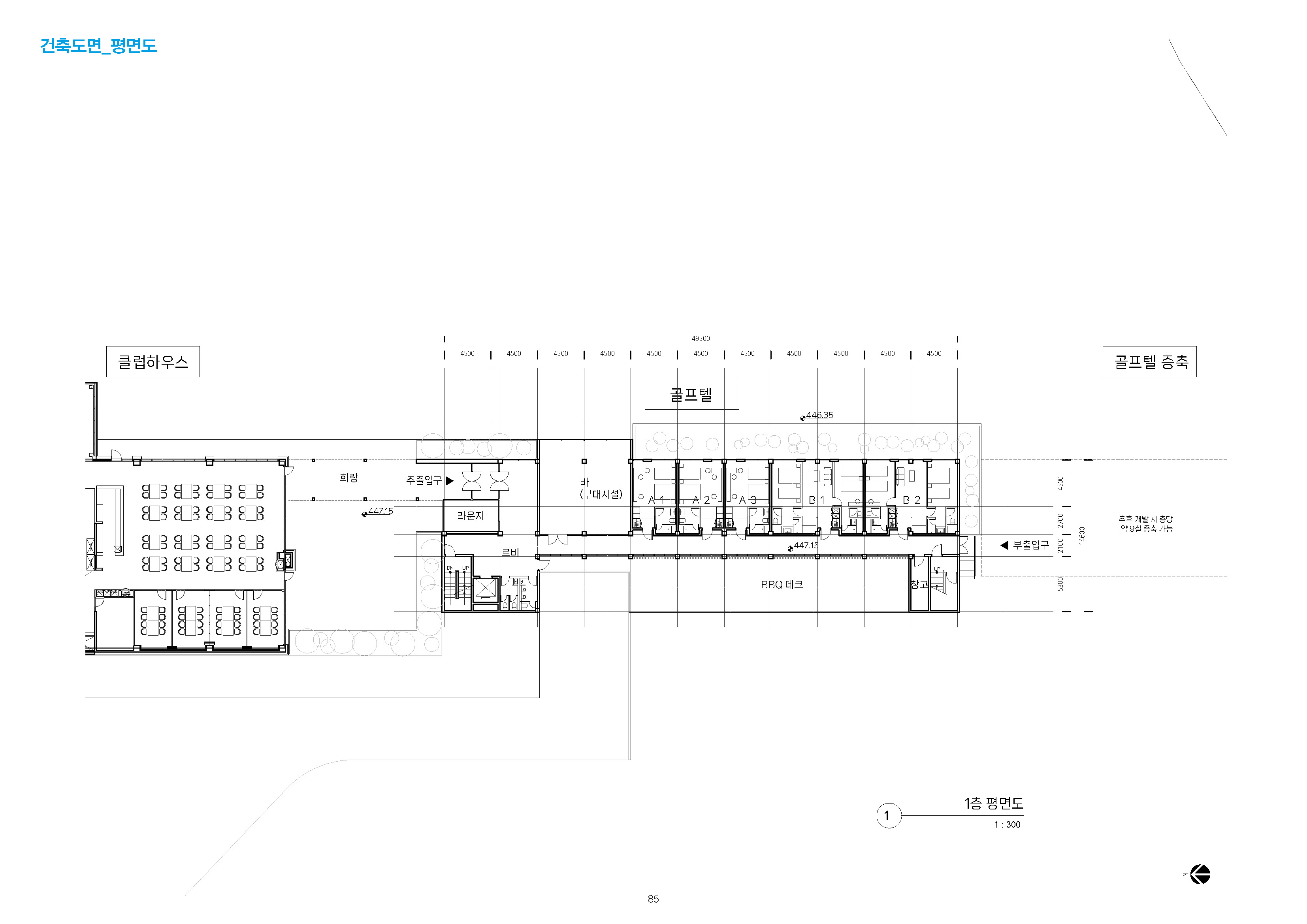
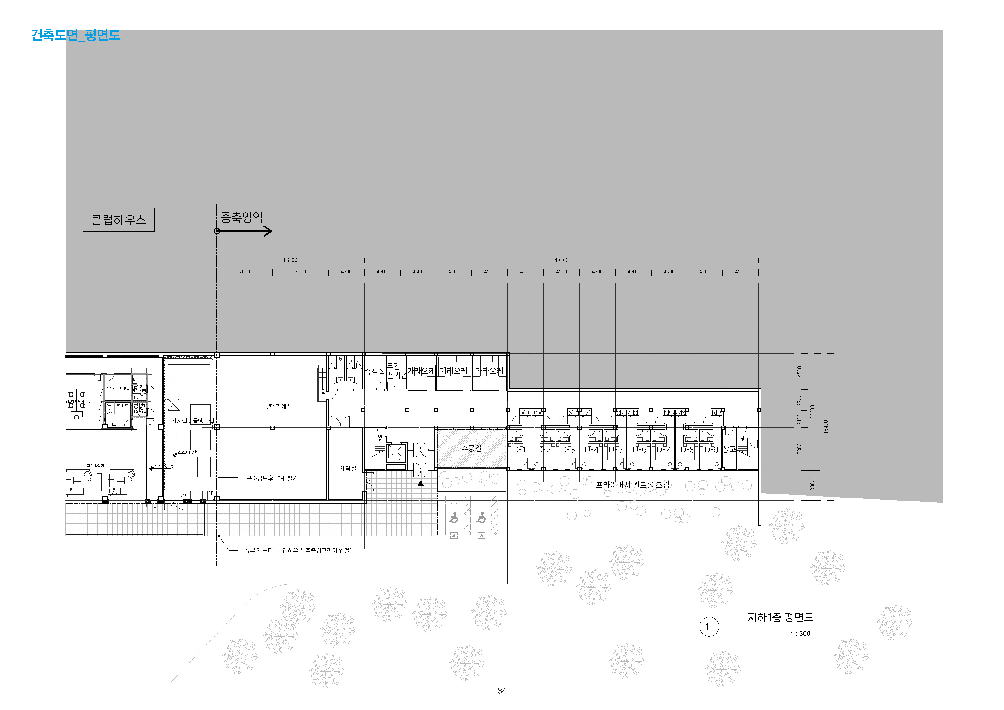
J RESORT GOLFTEL (2023)


Location | Jeollabuk do, South Korea
Program | Resort

ONGOING PROJECT